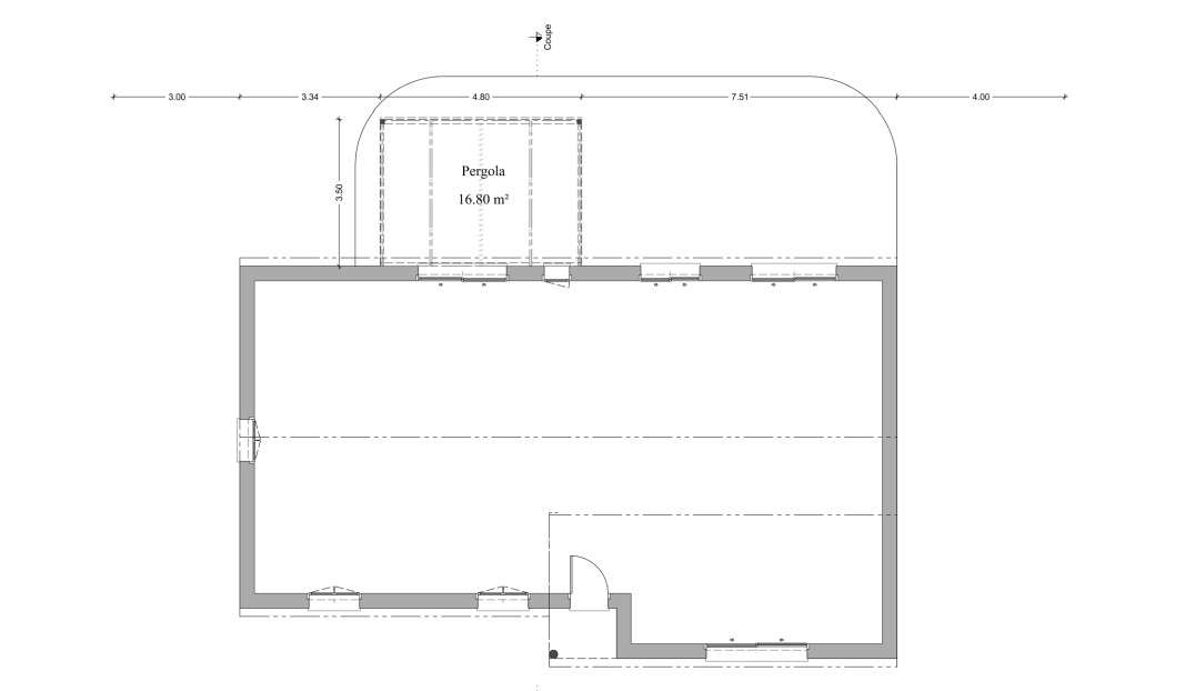
Déclaration préalable pour une pergola à romorantin
nous rédigeons pour nos clients les démarches administratives afin d'être conforme aux règlementations en vigueur.
nous rédigeons pour nos clients les démarches administratives afin d'être conforme aux règlementations en vigueur.
nous rédigeons pour nos clients les démarches administratives afin d'être conforme aux règlementations en vigueur.
En ces jours pluvieux, nous préparons une belle saison agréable !
Déclaration préalable pour la construction d'une pergola à romorantin.
Il s'agit d'un projet entièrement en aluminium, avec une toiture mixte panneaux sandwich / polycarbonate anti chaleur de 32 mm d'épais.
Nos documents sont techniques et permettent aux services de l'urbanisme de valider dans 95 % des cas le projet du premier coup.